015
I'm trying to lower the resolution of the images I make these days.Through the blurred shape, many things are damaged and only goals remain. Maybe it's because I have the original in my head.
I was lucky to meet this existing building at this stage. If the building was freely expanded and renovated, many things would have changed in this building.
This building resulted in the preservation/growth/expansion of the possibility of the plane that the building had originally hidden.
I'm basically a client-friendly person. It's not a good intention, it's a rule of the game. Matching the client's taste. If he/she wants something spicy and salty, at least not sticking out the universal Pyongyang naengmyeon. I want to make spicy and salty Pyongyang naengmyeon. The client constantly doesn't like what I like, and just chooses one or two of the ten things I wanted to do. I'm all over the place in there.
Despite imagining and drawing it, I feel like I've jumped to a point beyond my imagination.
I like the feeling that it looks weird. It is difficult to determine whether it is beautiful or not. Although many parts have already been transferred to the role of the builder, only building well will further strengthen the hold on judgment.
work with studio mok
photograph park sehee
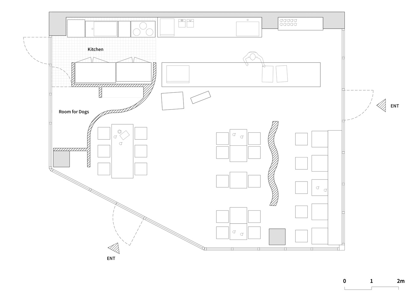
이 프로젝트는 숲 속의 오래된 집을 개조해 카페로 만드는 것이었습니다. 자연 속에서 오래된 것들을 만나게 되면 두려운 마음이 큽니다.
내 일은 대부분의 것들을 파괴한 후 재정의하는 작업이기 때문입니다. 남겨지는 것과 파괴돼야 할 것들 사이에서 운명의 결정은 오롯이 제 몫입니다.
카즈오 시노하라의 ashitaka house 를 닮도록 창문 구조는 변형되었습니다.
벽과 지붕은 다른 것으로 대체 되었습니다.
바닥 페이빙과 난로는 그 자체로 훌륭해 살아남았습니다.
가구는 남김없이 버려졌습니다.
나는 이것들이 좋은 결정이었는지 아직도 잘 모르겠습니다.
그러나 누군가는 보존과 파괴 사이에서 결정해야만 하고, 그 기회가 나에게 왔다는 점에 안도할 뿐입니다.
I'm trying to lower the resolution of the images I make these days.Through the blurred shape, many things are damaged and only goals remain. Maybe it's because I have the original in my head.
I was lucky to meet this existing building at this stage. If the building was freely expanded and renovated, many things would have changed in this building.
This building resulted in the preservation/growth/expansion of the possibility of the plane that the building had originally hidden.
I'm basically a client-friendly person. It's not a good intention, it's a rule of the game. Matching the client's taste. If he/she wants something spicy and salty, at least not sticking out the universal Pyongyang naengmyeon. I want to make spicy and salty Pyongyang naengmyeon. The client constantly doesn't like what I like, and just chooses one or two of the ten things I wanted to do. I'm all over the place in there.
Despite imagining and drawing it, I feel like I've jumped to a point beyond my imagination.
I like the feeling that it looks weird. It is difficult to determine whether it is beautiful or not. Although many parts have already been transferred to the role of the builder, only building well will further strengthen the hold on judgment.
work with studio mok
photograph park sehee
이 프로젝트는 숲 속의 오래된 집을 개조해 카페로 만드는 것이었습니다. 자연 속에서 오래된 것들을 만나게 되면 두려운 마음이 큽니다.
내 일은 대부분의 것들을 파괴한 후 재정의하는 작업이기 때문입니다. 남겨지는 것과 파괴돼야 할 것들 사이에서 운명의 결정은 오롯이 제 몫입니다.
카즈오 시노하라의 ashitaka house 를 닮도록 창문 구조는 변형되었습니다.
벽과 지붕은 다른 것으로 대체 되었습니다.
바닥 페이빙과 난로는 그 자체로 훌륭해 살아남았습니다.
가구는 남김없이 버려졌습니다.
나는 이것들이 좋은 결정이었는지 아직도 잘 모르겠습니다.
그러나 누군가는 보존과 파괴 사이에서 결정해야만 하고, 그 기회가 나에게 왔다는 점에 안도할 뿐입니다.
013.1
Things to hide 2
4년 전, 숨기기 위한 공간을 만들었습니다.(벌써 4년이라니)
오랜만에 만난 클라이언트는 숨을 수 있는 공간이 더 필요하다는 말을 했습니다.
나는 지난번 프로젝트의 꾸불꾸불 벽돌벽의 중간 과정인 꾸불꾸불 나무벽이 사실은 더 내 취향이고, 여기서 시공을 멈추고 싶었다는 말을 했습니다. 클라이언트는 그 나무벽을 이 곳에 만들어 달라고 했습니다. 나는 즐거운 마음으로 당시 벽돌에 덮인 구조체를 다시 한 번 꺼내 보았습니다. 아쉬운 순간을 다시 반복할 수 있다는 것은 이 일이 가지고 있는 행복일지도 모르겠습니다. 약간의 차이를 반복하는 것에서 즐거움을 느낍니다. 곡선의 매끄러운 벽은 대부분 비싸고, 정교하게(를 목표로) 만들어집니다. 이것은 대충 만들어졌으며, 저렴합니다.
예산 문제로 클라이언트에게 바니쉬 마감을 넘겼고, 그녀는 잘 해냈습니다.
--
Four years ago, I created a space to hide in. (I can't believe it's already been four years!)
I told the client that, in the previous project, I actually preferred the wavy wooden wall that was a part of the wavy brick wall. I wanted to stop the project there. The client asked me to add that wooden wall here as well. So, I happily took out the structure covered with bricks again. It felt like ‘About Time’ to repeat a moment of disappointment. I enjoy repeating slight differences. Smooth curved walls are usually expensive and made with precision, but this wall is roughly made and cheap.
Due to budget constraints, I entrusted the varnish finish to the client, and she did a great job.
Things to hide 2
4년 전, 숨기기 위한 공간을 만들었습니다.(벌써 4년이라니)
오랜만에 만난 클라이언트는 숨을 수 있는 공간이 더 필요하다는 말을 했습니다.
나는 지난번 프로젝트의 꾸불꾸불 벽돌벽의 중간 과정인 꾸불꾸불 나무벽이 사실은 더 내 취향이고, 여기서 시공을 멈추고 싶었다는 말을 했습니다. 클라이언트는 그 나무벽을 이 곳에 만들어 달라고 했습니다. 나는 즐거운 마음으로 당시 벽돌에 덮인 구조체를 다시 한 번 꺼내 보았습니다. 아쉬운 순간을 다시 반복할 수 있다는 것은 이 일이 가지고 있는 행복일지도 모르겠습니다. 약간의 차이를 반복하는 것에서 즐거움을 느낍니다. 곡선의 매끄러운 벽은 대부분 비싸고, 정교하게(를 목표로) 만들어집니다. 이것은 대충 만들어졌으며, 저렴합니다.
예산 문제로 클라이언트에게 바니쉬 마감을 넘겼고, 그녀는 잘 해냈습니다.
--
Four years ago, I created a space to hide in. (I can't believe it's already been four years!)
I told the client that, in the previous project, I actually preferred the wavy wooden wall that was a part of the wavy brick wall. I wanted to stop the project there. The client asked me to add that wooden wall here as well. So, I happily took out the structure covered with bricks again. It felt like ‘About Time’ to repeat a moment of disappointment. I enjoy repeating slight differences. Smooth curved walls are usually expensive and made with precision, but this wall is roughly made and cheap.
Due to budget constraints, I entrusted the varnish finish to the client, and she did a great job.
035 (ongoing)
이 프로젝트는 울진의 오래된 광산회사의 기숙사를 숙박 시설로 바꾸는 일입니다. 현장을 보기 전에 먼저 옛 블루프린트를 받았습니다. 단순한 도면이었지만, 그 안에는 대칭성과 비례를 통해 공간의 질서를 세우려 했던 의도가 분명하게 남아 있다는 생각이 들었습니다. 그 선들을 따라가다 보면, 기능을 넘어서 구조 안에 질서를 심어 놓으려는 시도가 읽힙니다. 이번 작업에서는 그 질서를 가능한 한 보존하는 것이 목표입니다.
개조 과정에서는 외관의 장식이나 복각보다, 기존 구조와 볼륨의 힘을 유지하는 데 주력할 마음입니다. 이미 완성된 골격이 공간의 성격을 결정하고 있으므로, 새로운 개입은 그 질서를 흐리지 않는 범위 안에서 이루어질 것입니다. 이는 표면을 새로 꾸미는 것보다, 구조적 완결성을 유지하는 것이 장기적으로 더 지속 가능한 해법이라는 생각 때문입니다.
설계는 종이 위에서 끝나지 않을 것입니다. 현장에서 구조를 하나씩 확인하고, 부재의 상태를 관찰하면서 필요한 조정을 해나갈 생각입니다. 보강과 개조가 이루어진다 해도, 원래의 대칭성과 비례를 존중하는 방식이 될 것입니다. 새로운 프로그램은 기존 구조 속에 삽입되며, 결과적으로, 건물은 원래의 설계 의도를 유지한 채, 현재의 프로그램을 수용하는 형태로 재구성될 것입니다.
“ 기존 구조물이 잠재력을 가지고 있고, 처음부터 새로 시작해서는 얻을 수 없는 어떤 가치를 제공할 수 있다고 확신한다면, 우리는 그 구조를 보존하는 쪽을 옹호한다.... 테이트 모던은 과거의 발전소와는 아무런 관련이 없다. 그것은 전혀 새로운 미술관이다. 우리는 벽돌조 건물을 역사의 흔적으로 추적하는 데에는 관심이 없었고, 오히려 그것이 새로운 건물을 얼마나 풍부하게 만들 수 있는지에 더 관심 있었을 뿐이다. ” -H&dM
I'm not sure how this hotel will change, but I’m working on the premise that I will take part in 'the symmetry game' created by the previous architects
이 프로젝트는 울진의 오래된 광산회사의 기숙사를 숙박 시설로 바꾸는 일입니다. 현장을 보기 전에 먼저 옛 블루프린트를 받았습니다. 단순한 도면이었지만, 그 안에는 대칭성과 비례를 통해 공간의 질서를 세우려 했던 의도가 분명하게 남아 있다는 생각이 들었습니다. 그 선들을 따라가다 보면, 기능을 넘어서 구조 안에 질서를 심어 놓으려는 시도가 읽힙니다. 이번 작업에서는 그 질서를 가능한 한 보존하는 것이 목표입니다.
개조 과정에서는 외관의 장식이나 복각보다, 기존 구조와 볼륨의 힘을 유지하는 데 주력할 마음입니다. 이미 완성된 골격이 공간의 성격을 결정하고 있으므로, 새로운 개입은 그 질서를 흐리지 않는 범위 안에서 이루어질 것입니다. 이는 표면을 새로 꾸미는 것보다, 구조적 완결성을 유지하는 것이 장기적으로 더 지속 가능한 해법이라는 생각 때문입니다.
설계는 종이 위에서 끝나지 않을 것입니다. 현장에서 구조를 하나씩 확인하고, 부재의 상태를 관찰하면서 필요한 조정을 해나갈 생각입니다. 보강과 개조가 이루어진다 해도, 원래의 대칭성과 비례를 존중하는 방식이 될 것입니다. 새로운 프로그램은 기존 구조 속에 삽입되며, 결과적으로, 건물은 원래의 설계 의도를 유지한 채, 현재의 프로그램을 수용하는 형태로 재구성될 것입니다.
“ 기존 구조물이 잠재력을 가지고 있고, 처음부터 새로 시작해서는 얻을 수 없는 어떤 가치를 제공할 수 있다고 확신한다면, 우리는 그 구조를 보존하는 쪽을 옹호한다.... 테이트 모던은 과거의 발전소와는 아무런 관련이 없다. 그것은 전혀 새로운 미술관이다. 우리는 벽돌조 건물을 역사의 흔적으로 추적하는 데에는 관심이 없었고, 오히려 그것이 새로운 건물을 얼마나 풍부하게 만들 수 있는지에 더 관심 있었을 뿐이다. ” -H&dM
I'm not sure how this hotel will change, but I’m working on the premise that I will take part in 'the symmetry game' created by the previous architects
034
우리는 종종 프로젝트를 완성하기 위해 ’더 나은 것‘을 추구하지만, 그 과정에서 본질을 잃곤 합니다. 완공되어 가는 과정에서 보아왔던 어느 지점에서 미완성인 채로 완료했습니다.
We often pursue ’something better‘ to complete a project, but in the process, we tend to lose its essence. At some point in the construction process, we left it unfinished, completing it in an incomplete state.
Photo Park Sehee
우리는 종종 프로젝트를 완성하기 위해 ’더 나은 것‘을 추구하지만, 그 과정에서 본질을 잃곤 합니다. 완공되어 가는 과정에서 보아왔던 어느 지점에서 미완성인 채로 완료했습니다.
We often pursue ’something better‘ to complete a project, but in the process, we tend to lose its essence. At some point in the construction process, we left it unfinished, completing it in an incomplete state.
Photo Park Sehee
039, 040 + /
Well-Made Boredom
공모에서 눈에 띄어야 한다는 압박은 아이코닉한 형태, 유행하는 재료, 배배꼬인 매싱 등등, 이 모든 것들이 조합 된 혼성 언어를 만들고 있다. (스케치업 결과물을 요구하는 발주처로 인해, 슬프게도 요즘은 스케치업 모델링으로 돋보이는 형태가 경쟁력이 된다) 그러나 우리 삶을 떠받치는 것은 ‘쇼미더머니’식 무대가 아니라, 비를 피하고, 길을 찾고, 기다리고, 모이고, 웃고, 울고, 일하고, 묻고, 답하고, 쉬는 평범한 기능들이다. 나는 이를 ‘잘 지어진 지루함’ 이라고 부르려고 한다. 매일 같은 방식으로 작동하는 것, 필요할 때 언제나 그 자리에 있는 것, 고치기 쉬운 것, 유지에 돈이 덜 드는 것 등등등.
“조감도 및 투시도는 아래 예시의 이미지를 참조하여 렌더링하지 않은 3차원 이미지로 표현하여야 하며 별도의 렌더링 프로그램 및 플러그인 프로그램 등의 편집프로그램 사용은 불허한다.”
공모에서 눈에 띄어야 한다는 압박은 아이코닉한 형태, 유행하는 재료, 배배꼬인 매싱 등등, 이 모든 것들이 조합 된 혼성 언어를 만들고 있다. (스케치업 결과물을 요구하는 발주처로 인해, 슬프게도 요즘은 스케치업 모델링으로 돋보이는 형태가 경쟁력이 된다) 그러나 우리 삶을 떠받치는 것은 ‘쇼미더머니’식 무대가 아니라, 비를 피하고, 길을 찾고, 기다리고, 모이고, 웃고, 울고, 일하고, 묻고, 답하고, 쉬는 평범한 기능들이다. 나는 이를 ‘잘 지어진 지루함’ 이라고 부르려고 한다. 매일 같은 방식으로 작동하는 것, 필요할 때 언제나 그 자리에 있는 것, 고치기 쉬운 것, 유지에 돈이 덜 드는 것 등등등.
“조감도 및 투시도는 아래 예시의 이미지를 참조하여 렌더링하지 않은 3차원 이미지로 표현하여야 하며 별도의 렌더링 프로그램 및 플러그인 프로그램 등의 편집프로그램 사용은 불허한다.”